Facilities at the Hall
Dumbleton Village Hall can offer you a fantastic Main Hall, a modern function/meeting room, bar facilities and kitchen as well as simple online booking with confirmation within 24 hours. Take a look around…
Are you looking to celebrate a wedding, anniversary or birthday with all your friends and relatives? Want a venue for your meeting? Or somewhere to run your club or fitness class?
Dumbleton Village Hall provides you with excellent facilities at very competitive prices
Booking is simple with our online system and you can hire our facilities by the hour, making it easy and convenient. Want a long-term hire? Contact us to discuss what you need
The Hall is ideal for a wide range of activities including:
- Parties, children’s parties, wedding celebrations and more
- Exercise and fitness classes
- Indoor sports including badminton, table tennis and indoor bowls
- Concerts, live bands, discos, dances
- Indoor markets, craft fairs, exhibitions and shows
- Business meetings, training and workshops
- Film nights, race nights and quiz nights
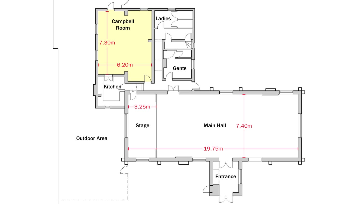
Main Hall
The Main Hall is a large, high-ceilinged light space with a raised stage, ideal for many uses, including sports, fitness, parties, dances, live acts, theatre productions and more.
Approximately 170m2 and a raised stage approx. 24m2, licensed for up to 150 people and recommended for up to 120 people seated. It is large enough to hold a bouncy castle or similar for children’s parties. Free superfast wifi is available to all hirers.
Residents: £12.50 per hour
Non-Residents: £15.00 per hour
Campbell Room
The Campbell Room is ideal for smaller functions and meetings. Light and airy, the room has space for around 30-35 people seated theatre style and 20-25 seated boardroom style. There’s free superfast wifi, adjustable lighting and easy access to the kitchen for serving.
Residents: £10.00 per hour
Non-Residents: £12.50 per hour
Bar
The Campbell Room has a modern bar area with a double and single chiller fridge, optic stand, ice buckets and an ample supply of glasses and barware. It also has direct access to the kitchen.
Use of the bar is included with every hire of the Campbell Room
Kitchen
Every hire of the Main Hall or Campbell Room includes the use of the Hall’s modern kitchen with:
- tower-style double oven
- four ring induction hob
- microwave
- dishwasher
- fridge and freezer
- double washing up station
- hand wash basin
- use of cutlery, crockery and utensils (approx. 120 place settings)
Use of the kitchen is included with every hire
Defibrillator
The defibrillator for the village is situated to the right of the main entrance to the Hall.
This is maintained and regularly inspected by Dumbleton Parish Council and has full instructions for use included.
Free WiFi
The Hall has a fantastic 1Gb fibre broadband connection thanks to our friends at Gigaclear and our mesh wifi system ensures a great connection anywhere in the Hall
Tables and Chairs
As part of any hire, the Hall also has 30 banquet-style chairs, 80 stackable-style plastic chairs along with 15 rectangular and 9 square folding tables available
PA System
Available with any hire for a small additional cost
Hearing Loop
Available on request in both the Main Hall and Campbell Room
Onsite Parking
Car parking for approx. 10 vehicles at the front of the Hall with further parking available a minute’s walk away
